Un poco de historia (de cuando dibujábamos a mano)

Entrega de Arquitectura 5 / UNLP / Cátedra del Arq. Almeida

Entrega de Arquitectura 6 / UNLP / Cátedra del Arq. Almeida

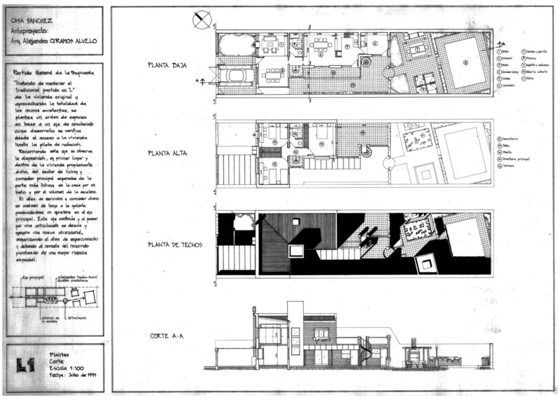
Mi primer trabajo en La Plata: CASA SÁNCHEZ

Publicación en la revista Casa y Jardín (nº 404)

Publicación en el periódico Ideal de Granada

Gracias Quino

Versión para imprimir | Mapa del sitio
© Alejandro Ramos-Alvelo Farnocchia