Algunos de mis trabajos

casa Mingorance/Roldán

Vivienda uifamiliar

Pulianas (Granada)

2014 (Proyecto)

En una urbanización de nueva creación, planteo esta vivienda teniendo en cuenta que la mejor orientación, vistas a Sierra Nevada y lindero a espacio público coinciden, obteniendo como resultado una vivienda con mucha luz y visuales. Adosada a un lindero, cuenta con semisótano, planta baja con salón, cocina-comedor, dormitorio principal con baño privado, aseo y cocina, y planta alta con dos dormitorios y baño. Rodea a la vivienda un amplio jardín, terrazas y piscina.

casa Escudero/Cardeñas

Vivienda uifamiliar

calle Barranco del Abogado (Granada)

2013 (Anteproyecto)

Muy cerca de la Alhambra, en un típico barrio granadino, y aprovechando las visuales de la ciudad que nos brinda la parcela al estar situada en altura, se plantea esta vivienda a partir de las distintas direccionales que la propia irregularidad del terreno nos propone. Con acceso desde dos calles, el principal y el rodado se sitúan en la calle inferior. El programa consta de semisótano para cochera en el nivel 0, salón/comedor, cocina y aseo en el nivel 1, tres dormitorios y baño en el nivel 2, dormitorio principal con vestidor y baño en suite en el nivel 3, y estudio en el nivel 4.

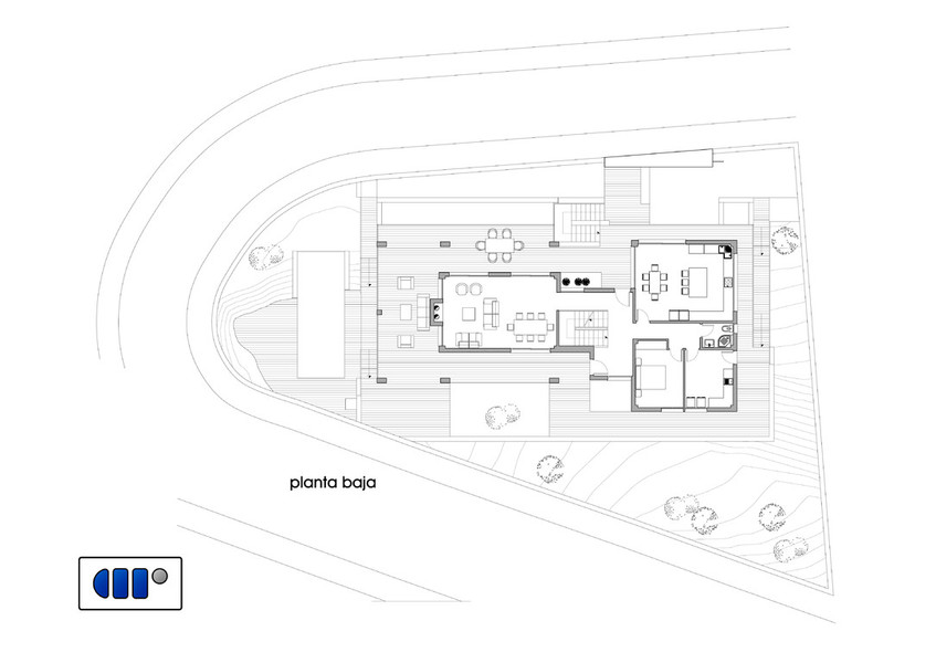
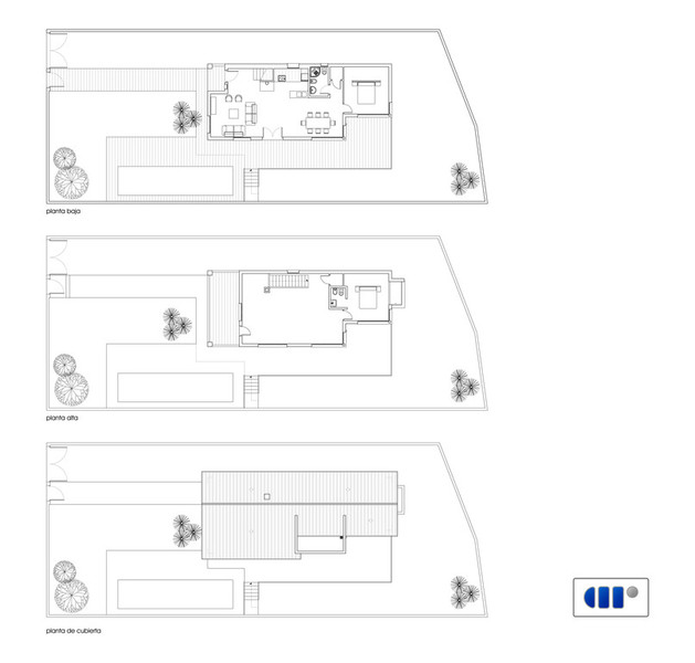
casa en El Atabal (2ª versión)

Vivienda uifamiliar

Urbanización El Atabal (Málaga)

2013 (Anteproyecto)

En una parcela de forma irregular, con una fuerte pendiente descendente, se plantea esta vivienda con la clara intención de aprovechar al máximo las vistas hacia el mar. Con acceso rodado y peatonal desde la parte superior, se escalonan y giran los volúmenes que albergan las distintas zonas de la vivienda buscando las curvas de nivel, articulándose y conjugando su geometría unos con otros, conectados en vertical por la escalera y el ascensor.

casa Alhama

Vivienda unifamiliar

Moraleda de Zafayona (Granada)

2012 (Proyecto)

Parcela de forma irregular rodeada de medianerías altas, lo que motiva la idea de generar un patio interior y llevar la piscina y zona de ocio a la cubierta de la planta baja. El acceso rodado se plantea por la calle interior.

casa ERIK

Vivienda unifamilliar

Urbanización Altos de La Zubia

La Zubia (Granada)

2006 (Proyecto)

casa GARCÍA MARTÍNEZ

Vivienda unifamiliar

Sector SR 21

Atarfe (Granada)

2012 (Proyecto)

2012 (En construcción)

casa MADRID (la morada de un psicólogo)

Vivienda unifamiliar

Sector SR 21

Atarfe (Granada)

2012 (Proyecto)

2012 (En construcción)

casa FERNÁNDEZ/CASTILLO

Vivienda unifamiliar

Moraleda de Zafayona (Granada)

2010 (Proyecto)

2012 (En construcción)

restaurante DELICATESSEN

Restaurante

Calle Sancho Panza, s/nº

Granada

2012 (Anteproyecto)

casa GARCÍA / RAMOS

Reforma y ampliación de vivienda unifamiliar

Villa Castells (Gonnet)

La Plata - Buenos Aires

2011 (Proyecto)

2012 (En construcción)

casa PLATERO

Vivienda unifamiliar

Urbanización El Atabal

Málaga

2008 (Proyecto)

casa LÁZARO / MARCOS

Vivienda unifamiliar

Padul (Granada)

2003 (proyecto)

2005 (final de obra) 

ALGEA INVERSIONES S.L.

Edificio L'Atalaya

25 viviendas, locales y cocheras

Padul (Granada)

2003 (Proyecto)

2005 (Final de Obra)

ALGEA INVERSIONES S.L.

Seis viviendas unifamiliares

Urbanización El Puntal

Padul (Granada) 

2005 (proyecto)

2006 (final de obra) 

 

casa RUEDA

Vivienda unifamiliar

Urbanización Altos de La Zubia

2005 (Proyecto)

2006 (Final de Obra)

Excma. Diputación Provincial de Granada

Rehabilitación de la Ermita de Fuente Nueva como Centro de Interpretación del Yacimiento Arqueológico

Fuente Nueva

Orce (Granada)

2010 (Proyecto)

2011 (Final de Obra primera fase) 

 

ALGEA INVERSIONES S.L.

Catorce viviendas unifamiliares

El Zahor (UA-38)

Dúrcal (Granada)

2004 (Proyecto)

2006 (Final de Obra)

GRUPO PÉREZ LÁZARO

Nave industrial y oficinas para Hierros Padul

Padul (Granada)

2001 (Proyecto y Obra)

casa CAÑETE / FERNÁNDEZ

Vivienda unifamiliar

Urbanización La Quinta

Alhendín (Granada)

2001 (Proyecto)

2005 (Final de Obra)

casa ANGUITA / RODRÍGUEZ

Vivienda Unifamiliar

Otura (Granada)

2004 (Proyecto)

2007 (Final de Obra)

casa SOTO / CAMACHO

Vivienda Unifamiliar

Urbanización Cortijo de la Luz

Otura (Granada)

2003 (Proyecto)

2005 (Final de Obra)

GRUPO PÉREZ LÁZARO

Oficinas y laboratorio para Argos

Padul (Granada)

2000 (Proyecto y Obra)

Consejería de Cultura - Junta de Andalucía

Ampliación de Sede

Paseo de la Bomba, nº 11. Granada

2004 (Proyecto)

casa HEM / ALONSO

Vivienda unifamiliar

Urbanización Cortijo de la Luz

Otura (Granada)

2005 (Proyecto)

2006 (Final de obra)

Interiorismo: Hilde Hem Eldre

Trabajo publicado en el número 404 de la revista Casa y Jardín

edificio HIDALGO

Edificio de 8 viviendas, locales y cocheras

Calle Madrid, s/nº.

Padul (Granada)

2006 (Proyecto)

2008 (Final de Obra)

Versión para imprimir | Mapa del sitio
© Alejandro Ramos-Alvelo Farnocchia